【予約制内覧会】メロディハイム池田 6階 | 関西(大阪・北摂・神戸)・関東(東京)で不動産の購入・売却、注文住宅、リノベーションの事なら株式会社ハウスコミュニケーション
【予約制内覧会】メロディハイム池田 6階
| 日時 | 【予約制内覧会開催中!】※要予約受付中! 10:00~19:00 |
|---|---|
| 所在地 | 池田市石橋4-22-1 |
| 価格 | 3,980万円 |
|---|
△▼△▼△▼△▼△▼△▼△▼△▼△▼△▼
【予約制内覧会開催中! 10:00~19:00】
内覧ご希望の方は当店までご予約下さい♪
△▼△▼△▼△▼△▼△▼△▼△▼△▼△▼
◆阪急宝塚線【石橋阪大前】駅徒歩約10分!◆阪急宝塚線【蛍池】駅徒歩18分!
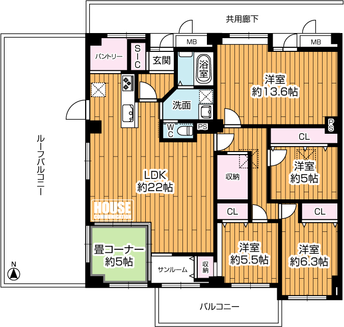
◆専有面積:137.28㎡
4LDK
◆最上階・南・西向き角部屋につき日当り、通風良好♪
◆ルーフバルコニー広々59㎡♪
◆徒歩圏にスーパーなどの商業施設あり!
| 種別 | 中古マンション | 間取り | 4LDK |
|---|---|---|---|
| 交通 | 阪急宝塚線【石橋阪大前】駅徒歩約10分 阪急宝塚線【蛍池】駅徒歩約18分 | 価格 | 3,980万円 |
| 所在地 | 池田市石橋4-22-1 | 専有面積 | 137.28㎡ |
| バルコニー面積 | 8.4㎡ | 築年月日 | 1987年9月 |
| 向き | 南 | 構造 | SRC造6階建 |
| 階数 | 6階 | 管理費 | 18,610円 |
| 修繕積立金 | 24,300円 | 管理形態 | 全部委託 |
| 管理 | 日勤 | 用途地域 | 第一種中高層住居地域 |
| 現況 | 空家 | 引渡し | 即時 |
| 小学校区 | 石橋南小学校 | 中学校区 | 石橋中学校 |
| 駐車場 | ※要確認! | 取引態様 | 仲介 |
池田市石橋4-22-1
























