| 価格 | 6,480万円 ![]() |
||||
|---|---|---|---|---|---|
| 所在地 | 大阪府吹田市千里丘北1-12
この地域周辺の物件を見る |
専有面積 | 73.28u | 所在階 / 階数 | 10階 / 地上10階建 |
| 交通 | JR東海道・山陽本線 千里丘/徒歩18分
大阪モノレール 宇野辺/徒歩15分 |
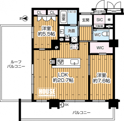
管理費等 | 33,100円 | 修繕積立金 | 11,900円 | 築年月 | 2022年7月築 | 間取り | 2LDK (洋室5.5/洋室7.6/LDK20.7) |
ポータルサイトや他社サイトで気になる物件がございましたらお気軽にご相談ください!
千里営業センター
06-6816-7789
「ホームページを見て」とお伝え下さい。
お問い合わせ番号をお伝えください
RHS-10222263
| 特徴 |
|
|---|---|
| セールスコメント | 【リフォーム内容】 ▶家電収納付カップボード新設 ▶浄水器ビルトイン型タッチレス水栓新調 ▶ウォシュレット付トイレ新調 ▶ウォールキャビネット新設(トイレ) ▶クロス一部張替 ▶フロアタイル張替(洗面室) ▶フロアタイル張替(トイレ) ▶エコカラット施工(トイレ) ▶洗濯パン新調 ▶間接照明設置(LDK) ▶間接照明設置(トイレ) ▶屋外水栓交換 ▶ハウスクリーニング ☆駐車場・キッズスペース完備☆ お仕事帰りでもご案内可能です!もちろん、ご相談は無料! ☆★☆ハウスコミュニケーション会員募集☆★☆ 簡単登録&登録無料! 非公開物件や新着物件などいち早くお届けします。 この機会に是非ご登録ください♪ 【中国語対応スタッフもいますので、どうぞご遠慮なくご相談してください。】 我公司有中国籍的工作人員,歓迎請随時諮詢,謝謝! |
| 備考 |
| 採光面 | - | 取引態様 | 仲介 |
|---|---|---|---|
| 現況 | 空家 | 引渡し | 即時 |
| 総戸数 | - | 構造 | RC造 |
| テラス面積 | - | バルコニー面積 | 17.1m² |
| 駐車場 | 有 9,000円〜11,000円F | 駐輪場 | - |
| 専用庭面積 | - | 建物権利 | 所有権 |
| 土地権利 | - | 用途地域 | 第二種住居地域 - - |
| 管理態様 | 管理形態:委託(通勤) 管理組合:あり 管理会社:株式会社ライフ・ワン・サポート | ||
| 小学校区 | 吹田市立千里丘北小学校 () この学区の他の物件を見る |
中学校区 | 千里丘中学校 () この学区の他の物件を見る |
| その他費用 | ※レストラン運営金:10,010円 ※生活支援業務金:26,510 ※ルーフバルコニー(24.88u)使用料:1,200円 | ||




















千里営業センター
06-6816-7789
「ホームページを見て」とお伝え下さい。
お問い合わせ番号をお伝えください
RHS-10222263
| 年利率 | % |
||
|---|---|---|---|
| ボーナス払い | 返済年数 | ||
| 頭金 | 直接入力する | 万円 | |

毎月のご返済額 |
ボーナス(×年2回) |
物件価格6,480万円 |
電話でお問い合わせ
千里営業センター
|
電話をかける 06-6816-7789 ※「ホームページを見て」とお伝えください。 |
お問い合わせ番号をお伝えください RHS-10222263 |
|---|
最上階角住戸につき、採光・通風・眺望が良好!収納豊富なプラン!充実の共用施設!バリアフリー設計!24時間有人管理!
ペット可(制限有)
★即日内覧可能物件!お好きな日時でご内覧可能!★
当店までお電話いただくか、もしくは24時間対応可能「内覧予約・お問い合わせ」フォームよりお問い合わせ下さい!業務に精通したスタッフが丁寧に対応致します。ご来店が困難な場合は、ご希望場所でのお待ち合わせも可能です。