| 価格 | 6,490万円 ![]() |
||||
|---|---|---|---|---|---|
| 所在地 | 東京都渋谷区幡ヶ谷2
この地域周辺の物件を見る |
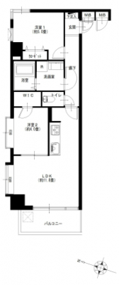
専有面積 | 50.78u | 所在階 / 階数 | 1階 / 地上6階建 |
| 交通 | 京王線 幡ヶ谷/徒歩4分
京王線 初台/徒歩11分 東京メトロ千代田線 代々木上原/徒歩22分 |
管理費等 | 11,880円 | 修繕積立金 | 16,100円 | 築年月 | 1984年11月築 | 間取り | 2LDK (LDK11.8/洋室4/洋室5) |
ポータルサイトや他社サイトで気になる物件がございましたらお気軽にご相談ください!
恵比寿営業センター
03-5456-8899
「ホームページを見て」とお伝え下さい。
お問い合わせ番号をお伝えください
RHS-230200231
| 特徴 |
|
|---|---|
| セールスコメント | ☆★☆ハウスコミュニケーション会員募集☆★☆ 簡単登録&登録無料! 非公開物件や新着物件などいち早くお届けします。 この機会に是非ご登録ください♪ 【中国語対応スタッフもいますので、どうぞご遠慮なくご相談してください。】 我公司有中国籍的工作人員,歓迎請随時諮詢,謝謝! ★☆★即日内覧可能物件!お好きな日時でご内覧可能!★☆★ 当店までお電話いただくか、もしくは24時間対応可能「内覧予約・お問い合わせ」フォームよりお問い合わせ下さい! |
| 備考 | ~令和8年4月下旬リノベ完成!角住戸×セキュリティ充実~ |
| 採光面 | 西 | 取引態様 | 仲介 |
|---|---|---|---|
| 現況 | 空家 | 引渡し | 相談 |
| 総戸数 | 44戸 | 構造 | RC造 |
| テラス面積 | - | バルコニー面積 | - |
| 駐車場 | なし F | 駐輪場 | 有 |
| 専用庭面積 | - | 建物権利 | 所有権 |
| 土地権利 | 所有権 | 用途地域 | 準工業地域 - - |
| 管理態様 | 管理形態:委託(通勤) 管理組合:あり 管理会社:(株)大京アステージ | ||
| 小学校区 | 渋谷区立西原小学校 (約750m) この学区の他の物件を見る |
中学校区 | 代々木中学校 (約900m) この学区の他の物件を見る |
| その他費用 | |||








恵比寿営業センター
03-5456-8899
「ホームページを見て」とお伝え下さい。
お問い合わせ番号をお伝えください
RHS-230200231
| 年利率 | % |
||
|---|---|---|---|
| ボーナス払い | 返済年数 | ||
| 頭金 | 直接入力する | 万円 | |

毎月のご返済額 |
ボーナス(×年2回) |
物件価格6,490万円 |
電話でお問い合わせ
恵比寿営業センター
|
電話をかける 03-5456-8899 ※「ホームページを見て」とお伝えください。 |
お問い合わせ番号をお伝えください RHS-230200231 |
|---|
◎物件のポイント
◆令和8年4月下旬リノベーション完成予定!
◆新耐震基準適合マンション
◆西・北角住戸、専有面積:50.78u・2LDK
◆オートロック、防犯カメラでセキュリティ面も充実
◆各洋室にクローゼット完備で収納豊富
◆充実した周辺環境につき住環境良好
◎立地のポイント
◆京王線「幡ヶ谷駅」 徒歩3分
◆ドラッグセイムス幡ヶ谷六号通店 徒歩4分
◆ダイエー幡ヶ谷 徒歩6分
◆ローソン幡ヶ谷二丁目店 徒歩3分
◆ミニストップ渋谷本庁六丁目店 徒歩4分
◆ライフ幡ヶ谷店 徒歩7分
◆幡ヶ谷児童遊園地 徒歩1分
★即日内覧可能物件!お好きな日時でご内覧可能!★
当店までお電話いただくか、もしくは24時間対応可能「内覧予約・お問い合わせ」フォームよりお問い合わせ下さい!業務に精通したスタッフが丁寧に対応致します。ご来店が困難な場合は、ご希望場所でのお待ち合わせも可能です。